Tríon: o novo ponto alto para morar e investir no Jardim Paulistano.
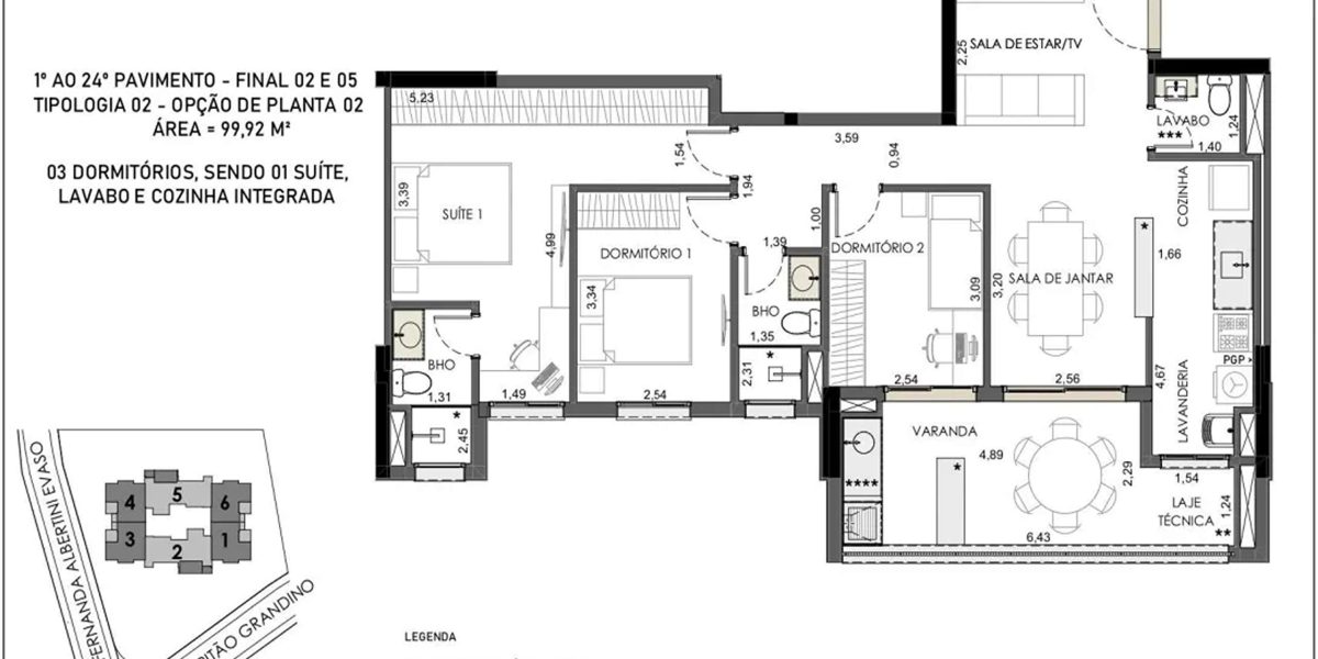
Imagine abrir a porta e ver a sala integrada à varanda gourmet, banhada pela luz do pôr do sol e com a cidade inteira aos seus pés. Enquanto muitos ainda apostam em imóveis antigos e sem estrutura, aqui você tem um condomínio contemporâneo, em obras avançadas, cercado por comércio, serviços, escolas, mercados e fácil acesso às principais vias de Sorocaba. Os ambientes parecem saídos de revista: cozinha com bancada ampla, sala ampla conectada à varanda com painel verde, suíte com closet iluminado, coworking elegante, brinquedoteca criativa, áreas gourmet e fitness que convidam a usar todos os dias. Com plantas flexíveis de 2 e 3 dormitórios, suítes, lavabo e metragens de 69 m² a 99 m², o Tríon une conforto para morar hoje e excelente potencial de valorização até a conclusão da obra em 2027. Garanta sua unidade no Tríon agora: peça mais detalhes, simule condições especiais e agende uma visita ao decorado para sentir na prática como será viver aqui.